Проект бытовки №5 строительство домов из бруса и бревна под ключ цены
Обратная связь

Проект бытовки №5

Цена

ПО ЗАПРОСУ
Проект бытовки №5 Проект бытовки №5 Проект бытовки №5 Проект бытовки №5 Проект бытовки №5 Проект бытовки №5

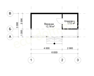
План схема Проект бытовки №5

Высота стен первого этажа: 2.5 метра.

Высота фронтонов: 3 метра.

Проект бытовки №5
В состав стоимости входит:
Материалы:
  1. Брус 150х150 мм на наружные несущие стены;
  2. Брус 150х150 мм на наружные фронтоны;
  3. Брус 100х150 мм на внутренние перегородки;
  4. Брус 100х150 мм на балки перекрытий ( половые, межэтажные, подстропильные );
  5. Доска 50х150 мм на стропильную конструкцию;
  6. Доска 25х100 мм, 25х150 мм на обрешётку;
  7. Доска 25х100 мм, 25х150 мм на черновой пол;
  8. Брусок 50х50;
  9. Метизные изделия ( скобы, гвозди, саморезы );
  10. Межвенцовый утеплитель - льноватин;
  11. Рубероид на временную кровлю крыши;
  12. Материал на изготовление строительных лесов;
  13. Гидроизоляция на фундамент - гидроизол;
  14. Деревянные нагеля;
  15. Рабочий проект;
Перечень работ:
  1. Монтаж сруба с внутренними перегородками;
  2. Врезка балок половых, межэтажных, подстропильных;
  3. Прокладка межвенцового утеплителя льноватина;
  4. Подвивка льноватина;
  5. Прошкантовка стен деревянными нагелями;
  6. Монтаж стропильной конструкции;
  7. Укладка обрешётки;
  8. Укладка черновых полов;
  9. Кровля временной кровлей-рубероидом;
  10. Укладка на фундамент гидроизоляции;
  11. Монтаж и демонтаж строительных лесов.
  12. Обработка нижних венцов и балок в подарок
Если Вам понравился проект дома из бруса, Вы можете заказать его строительство или строительство сруба двухэтажного прямо сейчас оформив заявку позвонив нашим менеджерам.

Похожие проекты

Наши преимущества
Работаем без предоплаты!
Выезд на заключение договора - бесплатно!
Доставка в любую точку центрального региона!
Материал проходит обработку экологически чистым антисептиком для внутренних и наружных работ!
При заказе дома скидка на баню до 10% от стоимости!
Бесплатный выезд для проведения послеусадочных работ!
Отделочные работы нами построенных домов - скидки до 20%!
Строим дома любой сложности!
Бесплатный расчет Вашего проекта!
Делаем согласование проектов домов с БТИ (данная услуга осуществляется отдельно)!
Предлагаем услуги дизайнера по созданию визуального вида вашего будущего дома!
Видео отзывы
Есть вопросы по строительству дома?
Вы можете приложить файл с проектом, схемой объекта. Если файлов несколько, вы можете сжать их архиватором WinZip или WinRar.