Дом из бруса № ДБ-198 строительство домов из бруса и бревна под ключ цены
Обратная связь

Дом из бруса № ДБ-198

Цена

Брус простой 150х150 1215500 Купить
Брус профилированный 145х145 1336500 Купить
Брус профилированный 145х195 1457500 Купить
Дом из бруса № ДБ-198 Дом из бруса № ДБ-198 Дом из бруса № ДБ-198 Дом из бруса № ДБ-198 Дом из бруса № ДБ-198 Дом из бруса № ДБ-198

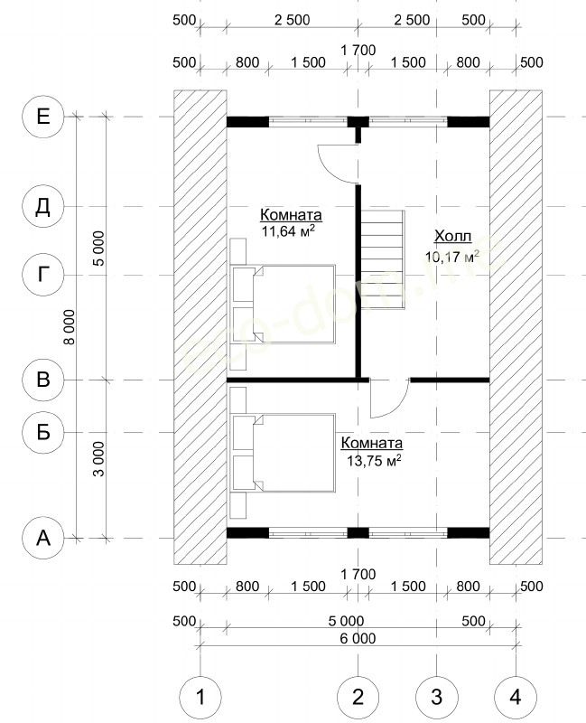
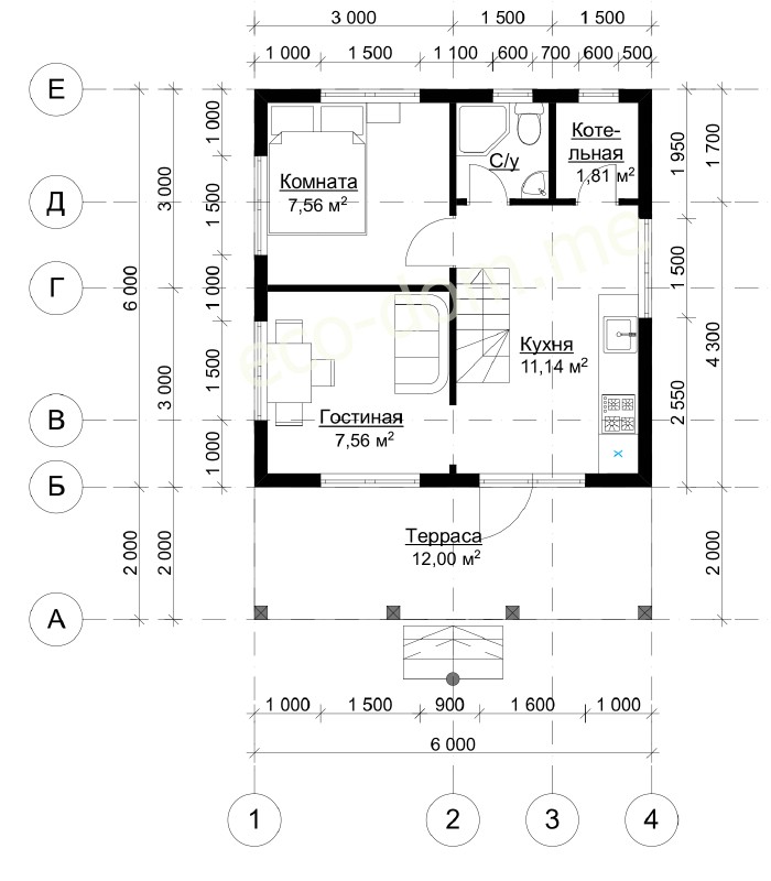
План схема Дом из бруса № ДБ-198

Высота стен первого этажа 3 метра.

Высота фронтонов 3 метра.

Дом из бруса № ДБ-198 Дом из бруса № ДБ-198

В состав стоимости входит:

Материалы:
  1. Брус 150х150 мм на наружные несущие стены;
  2. Брус 150х150 мм на наружные фронтоны;
  3. Брус 100х150 мм на внутренние перегородки;
  4. Брус 100х150 мм на балки перекрытий ( половые, межэтажные, подстропильные );
  5. Доска 50х150 мм на стропильную конструкцию;
  6. Доска 25х100 мм, 25х150 мм на обрешётку;
  7. Доска 25х100 мм, 25х150 мм на черновой пол;
  8. Брусок 50х50;
  9. Метизные изделия ( скобы, гвозди, саморезы );
  10. Межвенцовый утеплитель - льноватин;
  11. Рубероид на временную кровлю крыши;
  12. Материал на изготовление строительных лесов;
  13. Гидроизоляция на фундамент - гидроизол;
  14. Деревянные нагеля;
  15. Рабочий проект;
Перечень работ:
  1. Монтаж сруба с внутренними перегородками;
  2. Врезка балок половых, межэтажных, подстропильных;
  3. Прокладка межвенцового утеплителя льноватина;
  4. Подвивка льноватина;
  5. Прошкантовка стен деревянными нагелями;
  6. Монтаж стропильной конструкции;
  7. Укладка обрешётки;
  8. Укладка черновых полов;
  9. Кровля временной кровлей-рубероидом;
  10. Укладка на фундамент гидроизоляции;
  11. Монтаж и демонтаж строительных лесов.
  12. Обработка нижних венцов и балок в подарок
Если Вам понравился проект дома из бруса, Вы можете заказать его строительство или строительство сруба двухэтажного прямо сейчас оформив заявку позвонив нашим менеджерам.
Площадь общая: 77,94м2
Площадь полезная 79,54м2

Похожие проекты

Наши преимущества
Работаем без предоплаты!
Выезд на заключение договора - бесплатно!
Доставка в любую точку центрального региона!
Материал проходит обработку экологически чистым антисептиком для внутренних и наружных работ!
При заказе дома скидка на баню до 10% от стоимости!
Бесплатный выезд для проведения послеусадочных работ!
Отделочные работы нами построенных домов - скидки до 20%!
Строим дома любой сложности!
Бесплатный расчет Вашего проекта!
Делаем согласование проектов домов с БТИ (данная услуга осуществляется отдельно)!
Предлагаем услуги дизайнера по созданию визуального вида вашего будущего дома!
Видео отзывы
Есть вопросы по строительству дома?
Вы можете приложить файл с проектом, схемой объекта. Если файлов несколько, вы можете сжать их архиватором WinZip или WinRar.