Элитные дома из бруса 10 на 9 № ЭД-85 строительство домов из бруса и бревна под ключ цены
Обратная связь

Проект элитного дома из бруса 10х9 № ЭД-85

Цена

Брус простой 150х150 1602150 Купить
Брус профилированный 145х145 1905970 Купить
Брус профилированный 145х195 2202860 Купить
Проект элитного дома из бруса 10х9 № ЭД-85 Проект элитного дома из бруса 10х9 № ЭД-85 Проект элитного дома из бруса 10х9 № ЭД-85 Проект элитного дома из бруса 10х9 № ЭД-85 Проект элитного дома из бруса 10х9 № ЭД-85 Проект элитного дома из бруса 10х9 № ЭД-85

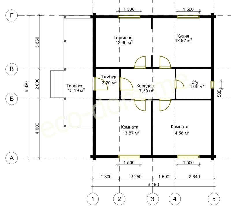
План схема Проект элитного дома из бруса 10х9 № ЭД-85

Высота стен первого этажа 3 метра.

Высота фронтонов 3 метра.

Проект элитного дома из бруса 10х9 № ЭД-85 Проект элитного дома из бруса 10х9 № ЭД-85

Наша компания предоставляет клиентам возможность построить свой собственный уютный дом из бруса. Сотрудничая с нами, вы получаете:

  • Проект жилища своей мечты;
  • Высококачественные материалы для строительства;
  • Штат опытных и квалифицированных специалистов, настоящих профессионалов своего дела;
  • Невысокую цену всех проводимых работ.

Проект дома из бруса 10 на 9 

Данный проект идеально подходит в качестве решения как для дачного дома, так и для полноценного загородного коттеджа. В нем вы найдете все необходимое для того, чтобы жить в течение всего года или приезжать в него на зимовку или летние каникулы.

Жилище имеет два этажа. На первом этаже расположены основные коммуникации.

  • С левой стороны расположены просторные гостиная и кухня;
  • С правой стороны имеется две жилых комнаты;
  • По центру идет коридор, который примыкает к небольшому, но удобному санузлу.

Особенно понравится данный проект людям, которые очень любят высокие широкие террасы. В данном проекте эта деталь располагается практически по всей ширине стены и способна вызвать весьма теплые чувства у любителей свежего воздуха.

Проект двухэтажного дома

Второй этаж жилища представляет собой невысокую, но просторную комнату-мансарду. В таком помещении можно с легкостью оборудовать жилую комнату для своих детей или место, предназначенное для отдыха после тяжелого трудового дня. Небольшая высота помещения только играет ему на пользу, создавая больше уютной атмосферы, располагающей к отдыху и времяпровождению в кругу семьи.

Возможность зимовать в таком доме даже в самые лютые российские морозы обеспечивает использование дополнительного утепления. В качестве материала-утеплителя выступает льноватин. Он идеально подходит для утепления жилища из бруса.

Элитное жилье доступно каждому! 

Наша компания предоставляет своим клиентам широкий выбор проектов домов из бруса различного назначения. У нас вы можете найти:

  • Элитные загородные коттеджи;
  • Жилье для дачных участков.

Все это предоставляется по стоимости, которая будет доступна любому клиенту.

Позвоните нам прямо сейчас, чтобы узнать подробности работы и грамотно оформить заявку на строительство.

В комплектацию дома под усадку входит:

Материалы:

  • Наружные стены,бруса 150*150 мм.,145*145 мм.,195*145 мм.,(уточнять);
  • Внутренние стены,брус 100*150 мм.,95*145 мм.,145*145 мм.,(уточнять);
  • Рубленные фронтоны(в зависимости от комплектации,возможно каркасного типа (уточнять);
  • Внутренние перегородки,в зависимости от комплектации,возможно каркасного типа либо из бруса(уточнять);
  • Лаги пола первого этажа брус 100*150 мм.,межэтажные,подстропильные,возможен второй свет в зависимости от комплектации(уточнять);
  • Стропильная конструкция,брус 50*150 мм.;
  • Контробрешётка брус 50*50 мм.;
  • Обрешётка крыши,доска 25*150 мм., 25*100 мм.;
  • Метизные изделия (скобы, гвозди...);
  • Межвенцевой утеплитель,джут (льноватин);
  • Рубероид, временная кровля(уточнять);
  • Материал на изготовление строительных лесов;
  • Гидроизоляция на фундамент, гидроизол;
  • Рабочий проект;
  • Погрузка и разгрузка пиломатериалов на участка Заказчика;

Перечень работ:

  • Монтаж сруба с внутренними стенами(в зависимости от комплектации);
  • Врезка балок пола, межэтажных, подстропильных(в зависимости от комплектации);
  • Прокладка межвенцового утеплителя джута (льноватина);
  • Прошкантовка стен деревянными нагелями;
  • Монтаж стропильной конструкции;
  • Укладка обрешётки;
  • Покрытие крыши временной кровлей рубероид(уточнять);
  • Укладка на фундамент гидроизоляции;
  • Монтаж и демонтаж строительных лесов;
  • Обработка нижних венцов и балок.

Фундамент,кровля и доставка расчитываются индивидуально.

Площадь общая: 138,10м2
Площадь полезная 140,10м2

Похожие проекты

Наши преимущества
Работаем без предоплаты!
Выезд на заключение договора - бесплатно!
Доставка в любую точку центрального региона!
Материал проходит обработку экологически чистым антисептиком для внутренних и наружных работ!
При заказе дома скидка на баню до 10% от стоимости!
Бесплатный выезд для проведения послеусадочных работ!
Отделочные работы нами построенных домов - скидки до 20%!
Строим дома любой сложности!
Бесплатный расчет Вашего проекта!
Делаем согласование проектов домов с БТИ (данная услуга осуществляется отдельно)!
Предлагаем услуги дизайнера по созданию визуального вида вашего будущего дома!
Видео отзывы
Есть вопросы по строительству дома?
Вы можете приложить файл с проектом, схемой объекта. Если файлов несколько, вы можете сжать их архиватором WinZip или WinRar.