Элитные дома из бруса 6 на 9 № ЭД-91 строительство домов из бруса и бревна под ключ цены
Обратная связь

Проект элитного дома из бруса 6х9 № ЭД-91

Цена

Брус простой 150х150 1157200 Купить
Брус профилированный 145х145 1340460 Купить
Брус профилированный 145х195 1584000 Купить
Проект элитного дома из бруса 6х9 № ЭД-91 Проект элитного дома из бруса 6х9 № ЭД-91 Проект элитного дома из бруса 6х9 № ЭД-91 Проект элитного дома из бруса 6х9 № ЭД-91 Проект элитного дома из бруса 6х9 № ЭД-91 Проект элитного дома из бруса 6х9 № ЭД-91

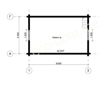
План схема Проект элитного дома из бруса 6х9 № ЭД-91

Высота стен первого этажа 3 метра.

Высота фронтонов 3 метра.

Проект элитного дома из бруса 6х9 № ЭД-91 Проект элитного дома из бруса 6х9 № ЭД-91

Дом из бруса 6 на 9, образец надежности и основательности, понравится любителям жить на первом этаже. Все помещения расположены на одном уровне. Планировка позволяет с удобством пользоваться как спальнями, так и просторной гостиной. Дом подойдет для загородного отдыха небольшой семьи из 2-3 человек или проживания пенсионеров. Отсутствие лестницы на второй этаж в этой ситуации значительное преимущество, поскольку с возрастом подниматься и спускаться по ступенькам становится сложнее.

Проект дома из бруса 6 на 9

Наличие предусмотренной проектом гостиной-столовой, объединенной в единую комнату с кухней, позволяет создать ощущение простора и в то же время органично зонировать пространство. Для жизни небольшой семьи или дачного отдыха такая планировка подходит особенно, поскольку на небольшой площади позволяет поддерживать семейное общение и принимать гостей. Выход из гостиной на крытую террасу делает комфортным отдых на свежем воздухе и позволяет гармонично организовать барбекю или шашлыки для большой компании.

Просторные окна в каждой из спален наполняют эти небольшие помещения светом и позволяют значительно экономить на электричестве, особенно в летний период.

Наличие глухих стен – прекрасная возможность продолжать строительство. В дальнейшем вы можете пристроить к дому:

  • гараж,
  • крытую веранду
  • еще одно жилое помещение.

Если семья увеличится или появится необходимость расширить жилую площадь, можно добавить к постройке полноценное крыло, возможно, и большей этажности.

Заслуживает внимания просторный санузел площадью почти в 10 кв. метров. Здесь без труда разместится не только душевая кабина, но и полноценная ванна и даже угловая джакузи.

Проект одноэтажного дома от компании «Эко Дом Мне»

Заказывая в нашей компании строительство по данному проекту, вы уже на этапе заключения договора узнаете, сколько будет стоить завершенный дом, если закажете его под ключ. Наши мастера готовы выполнить все виды работ:

  • возведение фундамента, стен и крыши;
  • подведение коммуникаций;
  • внутреннюю отделку.

Поручив строительство одному подрядчику и договорившись об окончательной цене с самого начала, вы можете планировать свой бюджет и быть уверены, что стоимость не изменится.

Звоните нашему менеджеру и назначьте встречу с инженером на объекте, чтобы обговорить детали и приступить к возведению дома своей мечты.

В комплектацию дома под усадку входит:

Материалы:

  • Наружные стены,бруса 150*150 мм.,145*145 мм.,195*145 мм.,(уточнять);
  • Внутренние стены,брус 100*150 мм.,95*145 мм.,145*145 мм.,(уточнять);
  • Рубленные фронтоны(в зависимости от комплектации,возможно каркасного типа (уточнять);
  • Внутренние перегородки,в зависимости от комплектации,возможно каркасного типа либо из бруса(уточнять);
  • Лаги пола первого этажа брус 100*150 мм.,межэтажные,подстропильные,возможен второй свет в зависимости от комплектации(уточнять);
  • Стропильная конструкция,брус 50*150 мм.;
  • Контробрешётка брус 50*50 мм.;
  • Обрешётка крыши,доска 25*150 мм., 25*100 мм.;
  • Метизные изделия (скобы, гвозди...);
  • Межвенцевой утеплитель,джут (льноватин);
  • Рубероид, временная кровля(уточнять);
  • Материал на изготовление строительных лесов;
  • Гидроизоляция на фундамент, гидроизол;
  • Рабочий проект;
  • Погрузка и разгрузка пиломатериалов на участка Заказчика;

Перечень работ:

  • Монтаж сруба с внутренними стенами(в зависимости от комплектации);
  • Врезка балок пола, межэтажных, подстропильных(в зависимости от комплектации);
  • Прокладка межвенцового утеплителя джута (льноватина);
  • Прошкантовка стен деревянными нагелями;
  • Монтаж стропильной конструкции;
  • Укладка обрешётки;
  • Покрытие крыши временной кровлей рубероид(уточнять);
  • Укладка на фундамент гидроизоляции;
  • Монтаж и демонтаж строительных лесов;
  • Обработка нижних венцов и балок.

Фундамент,кровля и доставка расчитываются индивидуально.

Площадь общая: 84,25м2
Площадь полезная 85,25м2

Похожие проекты

Наши преимущества
Работаем без предоплаты!
Выезд на заключение договора - бесплатно!
Доставка в любую точку центрального региона!
Материал проходит обработку экологически чистым антисептиком для внутренних и наружных работ!
При заказе дома скидка на баню до 10% от стоимости!
Бесплатный выезд для проведения послеусадочных работ!
Отделочные работы нами построенных домов - скидки до 20%!
Строим дома любой сложности!
Бесплатный расчет Вашего проекта!
Делаем согласование проектов домов с БТИ (данная услуга осуществляется отдельно)!
Предлагаем услуги дизайнера по созданию визуального вида вашего будущего дома!
Видео отзывы
Есть вопросы по строительству дома?
Вы можете приложить файл с проектом, схемой объекта. Если файлов несколько, вы можете сжать их архиватором WinZip или WinRar.