Дом из бруса 13 на 13 № ЭД-77 строительство домов из бруса и бревна под ключ цены
Обратная связь

Проект дома из бруса 13х13 № ЭД-77

Цена

Брус простой 150х150 2729650 Купить
Брус профилированный 145х145 2989360 Купить
Брус профилированный 145х195 3650350 Купить
Проект дома № ЭД-77 Проект дома № ЭД-77 Проект дома № ЭД-77 Проект дома № ЭД-77 Проект дома № ЭД-77 Проект дома № ЭД-77

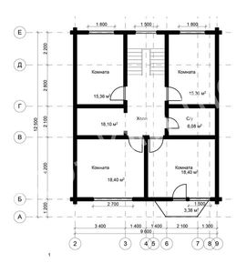
План схема Проект дома № ЭД-77

Высота стен первого этажа 3 метра.

Высота стен второго этажа 1,4 метра.

Высота рубленных фронтонов 3 метра.

Проект дома № ЭД-77 Проект дома № ЭД-77

Компания «Эко Дом Мне» уже многие годы работает в области деревянного домостроения. В каком бы регионе вы не жили, какой бы дом не хотели возвести, мы всегда сумеем удовлетворить ваш запрос!

Описание проекта дома из бруса 13 на 13: 1-й этаж

Вашему вниманию предлагается готовый проект брусового дома, который имеет очень продуманную планировку. Здесь вы сможете жить большой семьей круглогодично, не испытывая ни малейшего дискомфорта. Вот как устроен 1-й этаж:

  • Перед входом установлена большая терраса (более 46 м кв).
  • К ней примыкает котельная, позволяющая обеспечить комфортную температуру в помещениях даже в лютые морозы.
  • Имеется два входа с террасы: через тамбур и через гостиную.
  • Площадь гостиной составляет почти 28 м кв.
  • К ней примыкает кухня-столовая площадью более 22 м кв.
  • За кухней находится кладовка.
  • В холле есть 4 двери: в жилую комнату, гостиную, гардероб и санузел. Здесь же находится лестница на 2-й этаж.

Проект 2-этажного дома: что наверху?

На 2-м этаже вас ждет:

  • Просторный холл.
  • 4 комнаты общей площадью более 67 м кв.
  • Балкон.
  • Санузел.

Таким образом, в общей сложности в доме предусмотрено 5 помещений, которые можно использовать в качестве спален. Следовательно, вы сможете постоянно принимать у себя большое количество гостей, не чувствуя стеснения.

Почему стоит выбрать дом из бруса?

Дома из бруса активно возводятся по всей России. Их популярность объясняется такими факторами:

  • Стоимость – это один из наиболее бюджетных вариантов.
  • Оперативность – на возведение постройки уходит всего несколько недель.
  • Простота – для реализации проекта требуется минимальное количество спецтехники.
  • Экологичность – материал не наносит вреда человеческому здоровью.
  • Практичность – объект не нуждается в дорогостоящей внутренней отделке.
  • Теплоизоляция – в таком доме вы будете чувствовать себя комфортно в любое время года (зимой – тепло; летом – прохладно).

Индивидуальный подход

Компания «Эко Дом Мне» старается угодить каждому клиенту. Если вы решите заказать строительство дома у нас, мы заранее сориентируем вас по цене и аргументируем ее. Если у вас будут какие-либо дополнительные пожелания, мы их реализуем.

Чтобы связаться с менеджером и обсудить детали, позвоните по телефону, указанному на сайте, или же закажите обратный звонок. Будем рады помочь!

В состав стоимости входит:

Материалы:
  1. Брус 150х150 мм на наружные несущие стены;
  2. Брус 150х150 мм наружные фронтоны;
  3. Брус 100х150 мм на внутренние перегородки;
  4. Брус 100х150 мм на балки перекрытий ( половые, межэтажные, подстропильные );
  5. Доска 50х150 мм на стропильную конструкцию;
  6. Доска 25х100 мм, 25х150 мм на обрешётку;
  7. Доска 25х100 мм, 25х150 мм на черновой пол;
  8. Брусок 50х50;
  9. Метизные изделия ( скобы, гвозди, саморезы );
  10. Межвенцовый утеплитель - льноватин;
  11. Рубероид на временную кровлю крыши;
  12. Материал на изготовление строительных лесов;
  13. Гидроизоляция на фундамент - гидроизол;
  14. Деревянные нагеля;
  15. Рабочий проект;
Перечень работ:
  1. Монтаж сруба с внутренними перегородками;
  2. Врезка балок половых, межэтажных, подстропильных;
  3. Прокладка межвенцового утеплителя льноватина;
  4. Подвивка льноватина;
  5. Прошкантовка стен деревянными нагелями;
  6. Монтаж стропильной конструкции;
  7. Укладка обрешётки;
  8. Укладка черновых полов;
  9. Кровля временной кровлей-рубероидом;
  10. Укладка на фундамент гидроизоляции;
  11. Монтаж и демонтаж строительных лесов.
  12. Обработка нижних венцов и балок в подарок
Если Вам понравился проект дома из бруса, Вы можете заказать его строительство или строительство сруба двухэтажного прямо сейчас оформив заявку позвонив нашим менеджерам.
Доставка, фундамент и чистовая кровля рассчитываются индивидуально!
Площадь общая: 243,95м2
Площадь полезная 246,29м2

Похожие проекты

Наши преимущества
Работаем без предоплаты!
Выезд на заключение договора - бесплатно!
Доставка в любую точку центрального региона!
Материал проходит обработку экологически чистым антисептиком для внутренних и наружных работ!
При заказе дома скидка на баню до 10% от стоимости!
Бесплатный выезд для проведения послеусадочных работ!
Отделочные работы нами построенных домов - скидки до 20%!
Строим дома любой сложности!
Бесплатный расчет Вашего проекта!
Делаем согласование проектов домов с БТИ (данная услуга осуществляется отдельно)!
Предлагаем услуги дизайнера по созданию визуального вида вашего будущего дома!
Видео отзывы
Есть вопросы по строительству дома?
Вы можете приложить файл с проектом, схемой объекта. Если файлов несколько, вы можете сжать их архиватором WinZip или WinRar.