Дом из бруса 11 на 12 № ЭД-35
Обратная связь

Проект дома из бруса 11х12 № ЭД-35

Цена

Брус простой 150х150 2810830 Купить
Брус профилированный 145х145 2987050 Купить
Брус профилированный 145х195 3327940 Купить
Проект дома из бруса 11х12 № ЭД-35 Проект дома из бруса 11х12 № ЭД-35 Проект дома из бруса 11х12 № ЭД-35 Проект дома из бруса 11х12 № ЭД-35 Проект дома из бруса 11х12 № ЭД-35 Проект дома из бруса 11х12 № ЭД-35

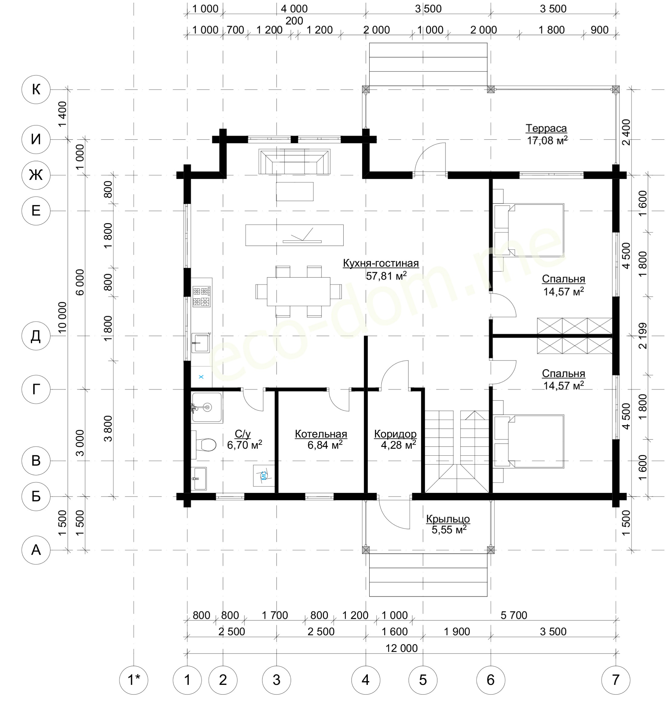
План схема Проект дома из бруса 11х12 № ЭД-35

Высота первого этажа 3метра.

Высота стен второго этажа 1 метра.

Высота рубленных фронтонов 3,5метра.

Проект дома из бруса 11х12 № ЭД-35 Проект дома из бруса 11х12 № ЭД-35

Компания «Эко Дом Мне» занимается качественным и недорогим строительством деревянных домов из бруса размером 11х12 по готовому проекту № ЭД-35. Комфортабельная двухэтажная постройка порадует вас огромными просторными площадями, где найдется место каждому.

На первом этаже коттеджа расположены: гостиная-столовая площадью более 47 кв. м, кухня, 2 спальни, прачка, тамбур, санузел, парная, душ, терраса и холл. На втором этаже размещены: холл, гостиная, кладовая комната, балкон, гардеробная и спальня. В таком жилище будет комфортно жить большой семье с детьми и частыми визитами дальних родственников. Спален вполне достаточно для того, чтобы можно было часто принимать гостей, проводить вечеринки или домашние уютные вечера с семьей за просмотром веселого фильма.

Отличительными чертами дома являются:

  • демократичная цена;
  • высокие потолки;
  • просторный балкон площадью более 8 кв. м;
  • современный дизайн;
  • отсутствие необходимости в проведении внутренней и внешней отделки.

Современный проект дома из бруса 11 на 12

Деревянный дом 11 на 12 по проекту № ЭД-35 привлекает не только своим простором и удобной планировкой, но и экологичностью. Основным материалом для строительства является простой или профилированный брус. Он отличается:

  • практичностью;
  • безопасностью;
  • низкой стоимостью;
  • длительностью эксплуатации;
  • особой природной текстурой.

Чтобы защитить брус от процесса гниения, образования на его поверхности плесени и грибка, специалисты компании «Эко Дом Мне» по окончанию строительных работ проводят дополнительную внешнюю и внутреннюю обработку. Она делается специальным антисептиком, который не способен нанести никакого вреда взрослым, детям, растениям или животным. Такой уход поможет значительно продлить срок службы постройки на долгие годы.

Проект двухэтажного дома № ЭД-35

Если вам понравился проект двухэтажного особняка № ЭД-35, обратитесь в компанию «Эко Дом Мне». Проектировщики фирмы предоставляют возможность скорректировать план в соответствии с желаемой вами высотой, шириной и длиной конструкции. Также возможна разработка индивидуального проекта с нуля.

Сделать заказ на строительство можно прямо сейчас. Позвоните нам по телефонам или отправьте электронную заявку с указанием своих контактных данных.

В состав стоимости входит:

Материалы:
  1. Брус 150х150 мм на наружные несущие стены;
  2. Брус 150х150 мм наружные фронтоны;
  3. Брус 100х150 мм на внутренние перегородки;
  4. Брус 100х150 мм на балки перекрытий ( половые, межэтажные, подстропильные );
  5. Доска 50х150 мм на стропильную конструкцию;
  6. Доска 25х100 мм, 25х150 мм на обрешётку;
  7. Доска 25х100 мм, 25х150 мм на черновой пол;
  8. Брусок 50х50;
  9. Метизные изделия ( скобы, гвозди, саморезы );
  10. Межвенцовый утеплитель - льноватин;
  11. Рубероид на временную кровлю крыши;
  12. Материал на изготовление строительных лесов;
  13. Гидроизоляция на фундамент - гидроизол;
  14. Деревянные нагеля;
  15. Рабочий проект;
Перечень работ:
  1. Монтаж сруба с внутренними перегородками;
  2. Врезка балок половых, межэтажных, подстропильных;
  3. Прокладка межвенцового утеплителя льноватина;
  4. Подвивка льноватина;
  5. Прошкантовка стен деревянными нагелями;
  6. Монтаж стропильной конструкции;
  7. Укладка обрешётки;
  8. Укладка черновых полов;
  9. Кровля временной кровлей-рубероидом;
  10. Укладка на фундамент гидроизоляции;
  11. Монтаж и демонтаж строительных лесов.
  12. Обработка нижних венцов и балок в подарок
Если Вам понравился проект дома из бруса, Вы можете заказать его строительство или строительство сруба двухэтажного прямо сейчас оформив заявку позвонив нашим менеджерам.
Доставка, фундамент и чистовая кровля рассчитываются индивидуально!

Похожие проекты

Наши преимущества
Работаем без предоплаты!
Выезд на заключение договора - бесплатно!
Доставка в любую точку центрального региона!
Материал проходит обработку экологически чистым антисептиком для внутренних и наружных работ!
При заказе дома скидка на баню до 10% от стоимости!
Бесплатный выезд для проведения послеусадочных работ!
Отделочные работы нами построенных домов - скидки до 20%!
Строим дома любой сложности!
Бесплатный расчет Вашего проекта!
Делаем согласование проектов домов с БТИ (данная услуга осуществляется отдельно)!
Предлагаем услуги дизайнера по созданию визуального вида вашего будущего дома!
Видео отзывы
Есть вопросы по строительству дома?
Вы можете приложить файл с проектом, схемой объекта. Если файлов несколько, вы можете сжать их архиватором WinZip или WinRar.