Дом из бруса 8 на 6 № ЭД-74 строительство домов из бруса и бревна под ключ цены
Обратная связь

Проект дома из бруса 8х6 № ЭД-74

Цена

Брус простой 150х150 1328910 Купить
Брус профилированный 145х145 1481920 Купить
Брус профилированный 145х195 1797290 Купить
Проект дома № ЭД-74 Проект дома № ЭД-74 Проект дома № ЭД-74 Проект дома № ЭД-74 Проект дома № ЭД-74 Проект дома № ЭД-74

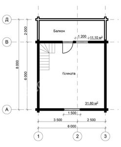
План схема Проект дома № ЭД-74

Высота стен первого этажа 2.8 метра.

Высота стен второго этажа 1.1 метра.

Высота рубленных фронтонов 2.7 метра.

Проект дома № ЭД-74 Проект дома № ЭД-74

Решили переехать в частный дом, но не знаете, где можно по выгодной цене заказать строительство желаемого жилья? Воспользуйтесь услугами компании «Эко Дом Мне». В компании работают высококвалифицированные специалисты, которые имеют богатый стаж именно в данной сфере деятельности. Они максимально быстро и добросовестно выполнят поставленные задачи. Мы на 100% уверены в качестве выполняемых работ, что подтверждается наличием гарантийного срока.

Преимущества использования бруса для возведения жилья 

Задаетесь вопросом, почему для строительства жилья следует выбрать именно брус? Мы можем ответить. Дом из бруса имеет несколько весомых преимуществ:

  • Простую технологию сборки.
  • Демократичную стоимость.
  • Экологическую безопасность.
  • Привлекательный внешний вид.
  • Высокую скорость сборки.
  • Отсутствие необходимости дополнительных отделочных работ.

Выбрав этот материал для строительства дома, можете не сомневаться, что на 100% останетесь довольны полученным результатом.

Проект дома из бруса 8 на 6 

Несмотря на небольшой размер дома, он довольно вместительный и комфортный. Стоит также отметить, что здание имеет презентабельный и привлекательный внешний вид. Архитектура и дизайн были разработаны высококлассными и опытными специалистами, работающими в нашей компании. В предложенном доме есть все необходимое для комфортабельной и полноценной жизни:

  • Терраса.
  • Туалет.
  • Душевая.
  • Парная.
  • Балкон.
  • Две больших комнаты.

Следует отметить, что здание имеет современную и тщательно разработанную планировку. Комнаты просторные и уютные.

Проект двухэтажного дома 

Решили заказать возведение двухэтажного дома? Поверьте, вы приняли безошибочное решение. Такой вариант будет оптимальным для семьи любого размера. Помимо этого, существует еще несколько преимуществ двухэтажного здания:

  • Экономия места на участке.
  • Большое количество комнат.
  • Возможность воплотить в реальность самые разные дизайнерские решения.
  • Наличие балкона и террасы.
  • Презентабельный внешний вид.

Если нужно проконсультироваться со специалистом касательно ухода за деревянным домом — позвоните по одному из указанных на сайте номеров. У сотрудника нашей строительной компании также можно оформить заказ и получить другую полезную информацию.

В комплектацию дома под усадку входит:

Материалы:

  • Наружные стены,бруса 150*150 мм.,145*145 мм.,195*145 мм.,(уточнять);
  • Внутренние стены,брус 100*150 мм.,95*145 мм.,145*145 мм.,(уточнять);
  • Рубленные фронтоны(в зависимости от комплектации,возможно каркасного типа (уточнять);
  • Внутренние перегородки,в зависимости от комплектации,возможно каркасного типа либо из бруса(уточнять);
  • Лаги пола первого этажа брус 100*150 мм.,межэтажные,подстропильные,возможен второй свет в зависимости от комплектации(уточнять);
  • Стропильная конструкция,брус 50*150 мм.;
  • Контробрешётка брус 50*50 мм.;
  • Обрешётка крыши,доска 25*150 мм., 25*100 мм.;
  • Метизные изделия (скобы, гвозди...);
  • Межвенцевой утеплитель,джут (льноватин);
  • Рубероид, временная кровля(уточнять);
  • Материал на изготовление строительных лесов;
  • Гидроизоляция на фундамент, гидроизол;
  • Рабочий проект;
  • Погрузка и разгрузка пиломатериалов на участка Заказчика;

Перечень работ:

  • Монтаж сруба с внутренними стенами(в зависимости от комплектации);
  • Врезка балок пола, межэтажных, подстропильных(в зависимости от комплектации);
  • Прокладка межвенцового утеплителя джута (льноватина);
  • Прошкантовка стен деревянными нагелями;
  • Монтаж стропильной конструкции;
  • Укладка обрешётки;
  • Покрытие крыши временной кровлей рубероид(уточнять);
  • Укладка на фундамент гидроизоляции;
  • Монтаж и демонтаж строительных лесов;
  • Обработка нижних венцов и балок.

Фундамент,кровля и доставка расчитываются индивидуально.

Площадь общая: 83,85м2
Площадь полезная 87,09м2

Похожие проекты

Наши преимущества
Работаем без предоплаты!
Выезд на заключение договора - бесплатно!
Доставка в любую точку центрального региона!
Материал проходит обработку экологически чистым антисептиком для внутренних и наружных работ!
При заказе дома скидка на баню до 10% от стоимости!
Бесплатный выезд для проведения послеусадочных работ!
Отделочные работы нами построенных домов - скидки до 20%!
Строим дома любой сложности!
Бесплатный расчет Вашего проекта!
Делаем согласование проектов домов с БТИ (данная услуга осуществляется отдельно)!
Предлагаем услуги дизайнера по созданию визуального вида вашего будущего дома!
Видео отзывы
Есть вопросы по строительству дома?
Вы можете приложить файл с проектом, схемой объекта. Если файлов несколько, вы можете сжать их архиватором WinZip или WinRar.